NØGLEFÆRDIGT SOMMERHUS BYGGES EFTER DINE ØNSKER
Lad os være totalentreprenør på dit nye typehus
Et fritidshus kan være et tilflugtssted for hele familien. Et sted, hvor er er plads til hele familien, afslapning og hygge udenfor.
Det lyder alt sammen dejligt, men det kan være krævende enten at finde et sommerhus, der rummer alle de ønsker til kvadratmeter og værelser, som du måske har, og samtidig kan det være en længerevarende proces at sætte et byggeprojekt i gang.
Derfor tilbyder vi hos Lynghuset at være totalentreprenør på dit sommerhusprojekt. Vi bygger et nøglefærdigt sommerhus lige efter dine ønsker i for eksempel Højby, Fårevejle eller i resten af Odsherred.
Hvorfor vælge et nøglefærdigt sommerhus fra Lynghuset?
Vil du gerne have noget at skulle have sagt i forhold til udformningen og bygningen af dit sommerhus? Men du har knapt så meget lyst til selv at skulle sørge for tilladelser eller at stå med hænderne i jorden?
Med os som totalentreprenør på dit sommerhusprojekt hjælper vi med alt fra selve tegningen af huset til ansøgning om tilladelser og eventuel nedrivning på grunden, hvis der står et gammelt sommerhus.
Vi sikrer dig et skræddersyet og nøglefærdigt sommerhus, der står fuldstændigt indflytningsklart, når du får nøglerne i hænderne. For når dagen for indflytning kommer, kan du glæde dig over, at køkkenet er funktionelt, og badeværelset fungerer uden problemer.
Vi klarer nemlig alle installationer og bestilling af hårde hvidevarer. Du og din familie skal kun sørge for at flytte de møbler m.m., som I ønsker at have i sommerhuset.
VI SKRÆDDERSYR DIT SOMMERHUS
Vi har udviklet fem koncepthuse, der på hver sin måde kan imødekomme dine ønsker til dit nye fritidshus. Ud fra disse kan du blive inspireret, og vi kan nemt rette til og skræddersy det enkelte typehus, så det fuldstændigt matcher dine behov. Lynghuset har mere end 20 års erfaring inden for håndværker- og byggebranchen. Vi er dermed mere end kompetente til at være totalentreprenør på dit byggeprojekt.
Vi klarer alle opgaverne i forbindelse med byggeriet
Det er vigtigt for os, at du som kunde føler, at du kan slappe helt af under byggeprocessen. Lad os om bekymringerne, og se frem til at du kan flytte ind med det samme, når vi giver dig nøglerne i hånden.
Med os som totalentreprenør klarer vi nemlig alle opgaver:
- Udfærdigelse af tegninger af sommerhuset
- Nedrivning af ældre bygning på grunden (PCB-screening)
- Alle nødvendige byggetilladelser
- Bygning af sommerhuset direkte på grunden
- Reetablering af have efter endt byggeproces (kan være en ekstra udgift)
- Installation af hårde hvidevarer m.m.
Det er derfor et komplet nøglefærdigt sommerhus, som du og din familie får nøglerne til, når vi er færdige på grunden.
Ønsker du en pris på et nøglefærdigt fritidshus? Klik her og find en oversigt over alle vores priser.
BLIV INSPIRERET AF VORES TYPEHUSE

LH 88
Inkl. Træ/Alu vinduer og skydedør i stuen
(kun små ændringer tilladt til denne pris)
Boligareal: 88m2
Overdækket terrasse: 13,5 m2
Pris inkl. moms: 1.588.000 kr.

LH 92
Inkl. Træ/Alu vinduer og skydedør i stuen
(kun små ændringer tilladt til denne pris)
Boligareal: 92 m2
Overdækket terrasse: 13,5 m2
Pris inkl. moms: 1.669.000 kr.

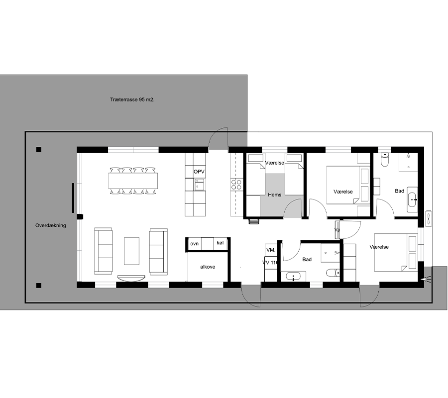
LH 95
Inkl. Træ/Alu vinduer og skydedør i stuen
(kun små ændringer tilladt til denne pris)
Hems over værelset ved stuen kan tilkøbes.
Boligareal: 95m2
Overdækket terrasse: 13,5 m2
Pris inkl. moms: 1.699.000 kr.

LH 109
Inkl. Træ/Alu vinduer og skydedør i stuen
(kun små ændringer tilladt til denne pris)
Boligareal: 109 m2
Overdækket terrasse: 13,5 m2
Hems: 6 m2
Pris inkl. moms: 1.893.000 kr.

LH 110
Inkl. Træ/Alu vinduer og skydedør i stuen
Boligareal: 110 m2
Overdækket terrasse: 13,5 m2
Hems: 6 m2
Pris inkl. moms: 1.966.000 kr.
LH 114
Inkl. Træ/Alu vinduer og skydedør i stuen
Boligareal: 114 m2
Hems: 6 m2
Overdækket terrasse: 16 m2
Pris inkl. moms: 1.998.000 kr.
