LH 110
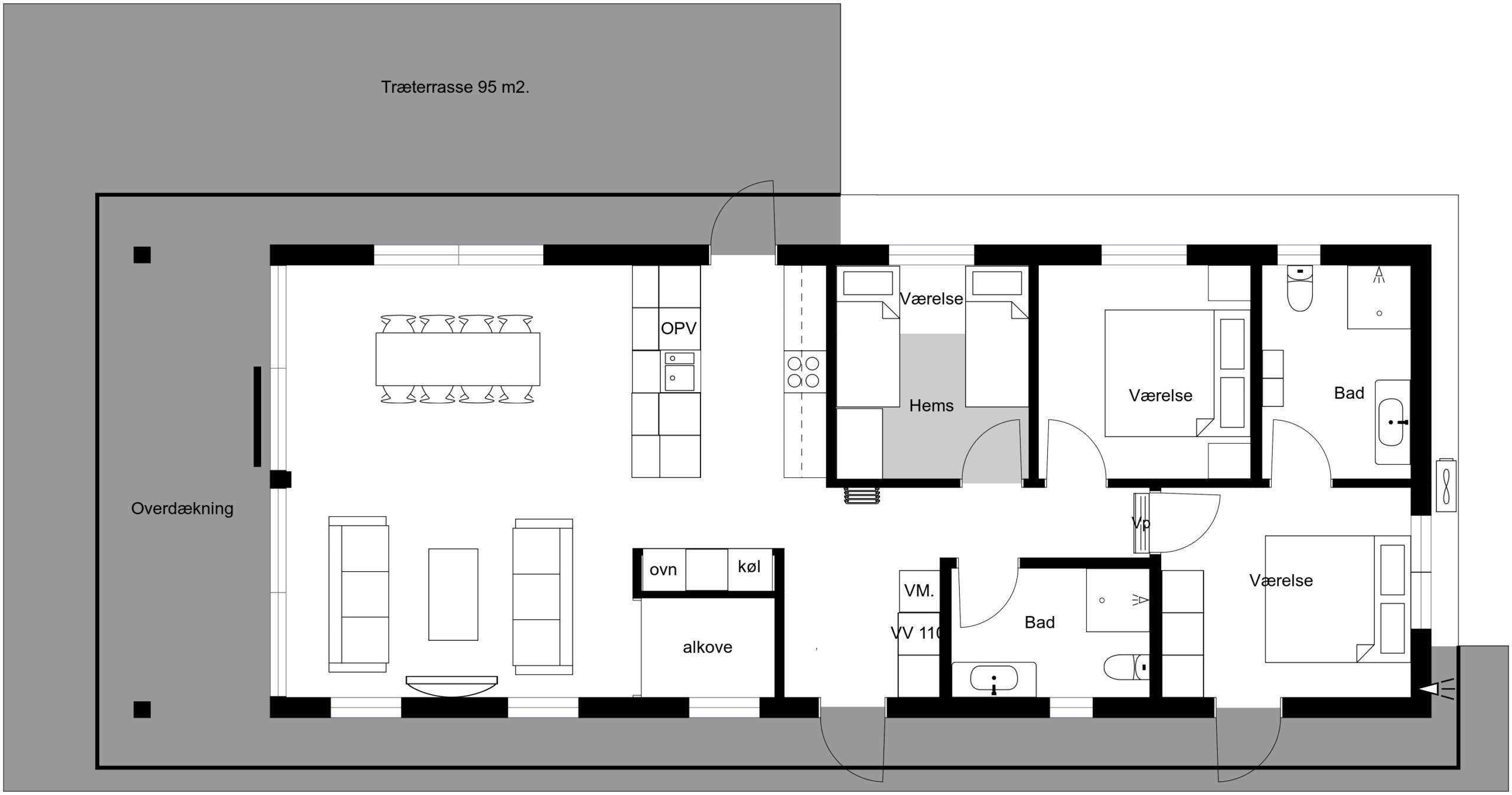
MODEL: LH 110 M²
Inkl. Træ/Alu vinduer og skydedør i stuen
(det er muligt at ændre på grundplanen)
Areal: 110 m². Hems: 6 m². Overdækket terrasse: 13,5 m². (Træterrasse: 95 m². er ikke inkl.)
Pris inkl. moms. 1.966.000 kr.
DET FÅR DU FOR PRISEN
- Nøglefærdigt hus færdigmalet udvendig
- Varmetabsrammeberegning
- Overdækninger som vist på tegning
- Varmepumpe med skjuler
- 8 stk. spot i udhæng
- Hårde hvidevarer til en værdi af 20.000 kr.
- Køkken og badeværelses arrangement fra HTH køkkenet eller Ikea
- Skabe i værelser fra Ikea.
- Led-spot i loftet på badeværelse og i køkken
- Hems med udtræksstige
- Alkove med madras
ISOLERINGSTYKKELSER
- 315 mm. isolering i loftet
- 215 mm. isolering i ydervæggene
- 300 mm. styrolit i gulvet
- Døre og vinduer Træ/Alu. med 3-lags glas og skydedør i stuen

VIL DU HØRE MERE OM LH 110?
Synes du vores LH 110 sommerhus ser interessant ud, og vil du gerne høre mere om mulighederne for dig og din grund?
Tøv ikke med at kontakte os, så finder vi sammen ud af, hvad der vil være den bedste løsning for dig.

