LH 120
MODEL: LH 120 M²
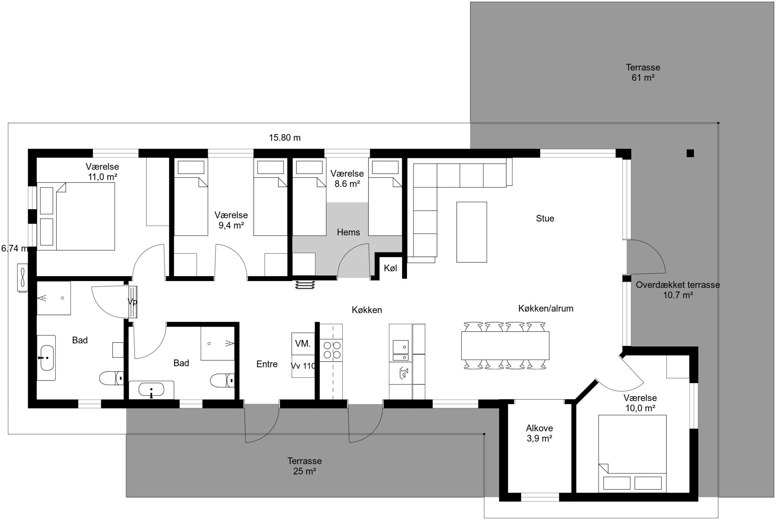
Areal: 120 m². Overdækket terrasse: 11 m². Hems: 6 m². (Træterrasse: 86 m². er ikke inkl.)
Pris inkl. moms. 2.129.000 kr.
DET FÅR DU FOR PRISEN
- Nøglefærdigt hus færdigmalet udvendig
- Varmetabsrammeberegning
- Overdækning ved terrasse som vist på tegning
- Varmepumpe med skjuler
- 7 stk. spot i udhæng
- Hårde hvidevarer til en værdi af 20.000 kr.
- Køkken og badeværelses arrangement fra HTH køkkenet eller Ikea
- Skabe i værelser fra Ikea.
- Led-spot i loftet på badeværelse og i køkken
- Hems med udtræksstige
ISOLERINGSTYKKELSER
- 315 mm. isolering i loftet
- 215 mm. isolering i ydervæggene
- 300 mm. styrolit i gulvet
- Døre og vinduer fra KPK med 3-lags glas
BESKRIVELSE AF HUSET
LH 120 har et støbt fundament med el-gulvvarme på badeværelserne.
De udvendige vægge laves i 45×145 mm. spærtræ, derefter vindpap, stålbånd, 25×45 mm. K33 afstandsliste og 1×6” sortmalet klinkebeklædning. Indvendigt på ydervæggene monteres dampspærre, og der påføres 45×70 mm. reglar. Derefter beklædes der med hvidmalet profilbrædder 15×110 mm. Huset opføres med loft til kip og gennemgående hvidmalet limtræs bjælke i kip.
Tag: 45×295 mm. spærtræ, undertag, 25x45mm. K33 afstandsliste, stålbånd, 38×73 mm. lægter og Dobbelt-S sort betontagsten. Vindskeder laves med vindskedesten.
På underside af spær påføres 45×95 mm. spætræ, derefter monteres hvidmalet profilbrædder 15×110 mm. Skillerum opsættes i 45×95 mm. spærtræ og beklædes også med hvide profilbrædder. På nogle af skillevæggene monteres der plader bagved profilbrædderne for stabilitet i bygningen.
Der lægges klinker på badeværelser, i entre og køkken ved skabe. I resten af huset lægges Moland lamelparketgulv eller Berry-Alloc laminatgulv

VIL DU HØRE MERE OM LH 120?
Synes du vores LH 120 sommerhus ser interessant ud, og vil du gerne høre mere om mulighederne for dig og din grund?
Tøv ikke med at kontakte os, så finder vi sammen ud af, hvad der vil være den bedste løsning for dig.




